Leistungen

Das WGS-Team verkauft nicht einfach nur Wäschereimaschinen und dazugehörige Technik; 

Sie kümmern sich natürlich auch um die kompetente Beratung und Vor-/ Ausführungsplanungen,

 um eine perfekte Lösung für Ihre Vorstellung der Wäscherei zu finden. 

Genauso bieten wir die komplette Einrichtung und Ausstattung von Wäschereien, Waschsalons und anderen Teilbereichen. 

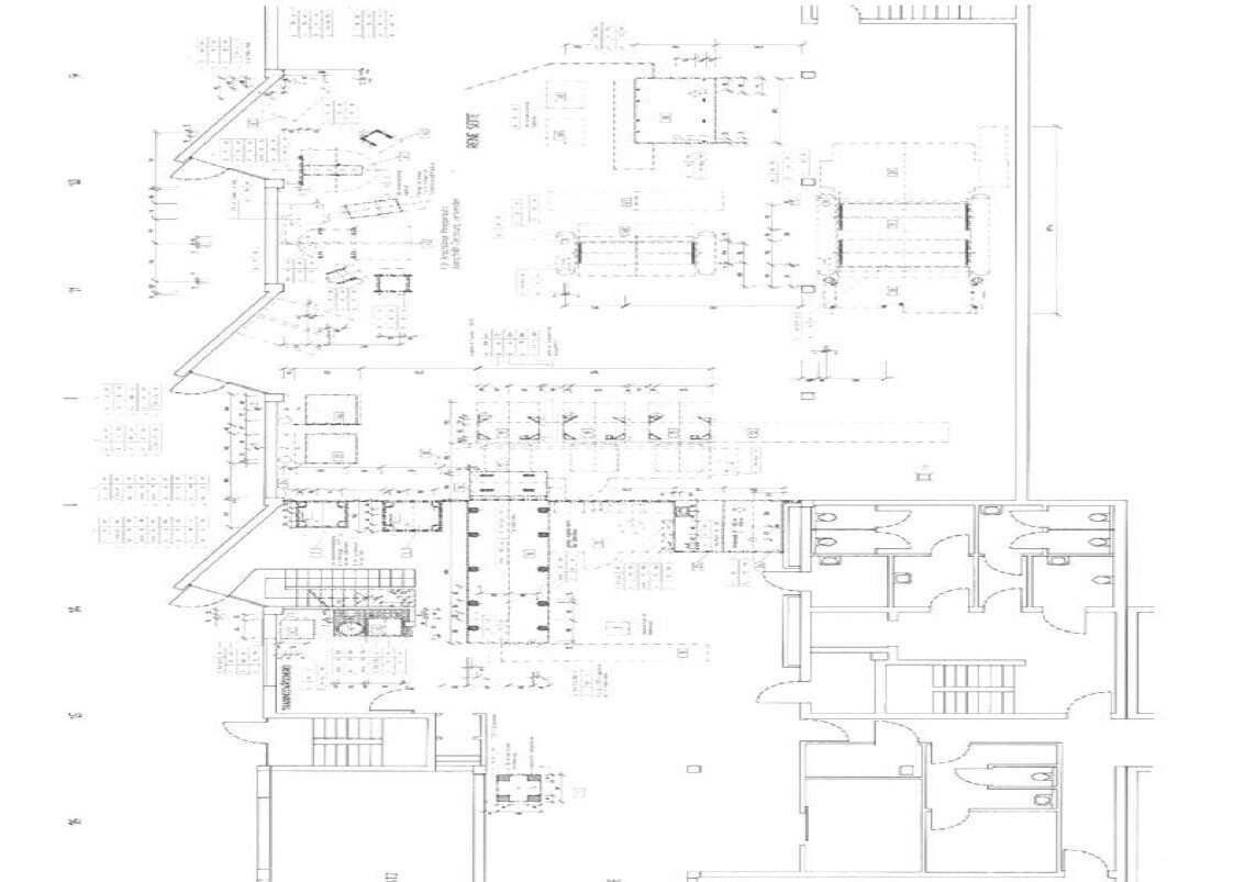
Zeichnung für die Einrichtung einer Wäschereimaschine für Kunden der WGS GmbH 

Dazu gehören beispielsweise auch Installationsarbeiten und Hygieneeinbauten wie Schleusen und Raumtrennwände. Natürlich gehören auch die Lieferung von Wäschereimaschinen und Wäschereizubehör sowie von benötigten Technikaggregaten zu unseren Aufgaben.

 Genauso wie Montage und Inbetriebnahme Ihrer Geräte und der anschließenden Personaleinweisungen der Technik. Darüber hinaus bieten wir ständige Wartungen und Reparaturarbeiten an allen gelieferten Maschinen und Geräten. Auch Ersatz- oder Verschleißteile können zu jeder Zeit geliefert und eingebaut werden.


Wir unterstützen sie bei der Vermittlung von Finanzierungen, unterstützen sie beim Genehmigungsverfahren und erstellen auch Wirtschaftlichkeitsberechnungen für Sie. 

Darüber hinaus können wir ihnen die Herstellung, Lieferung und Montage von Abwasseraufbereitungsanlangen für Wäschereiabwasser sowie Wärme- und Wasserrückgewinnungssystemen anbieten, sowie die Installation für Waschmittel-Dosieranlagen.

 Auch die Installation von Anlagen zur Dampf-, Weichwasser- und Drucklufterzeugung ist für uns kein Problem.

Wir können Ihnen Auskunft über jeglichen Erneuerungen von Mangelbewicklungen oder Mangelzubehör bieten. Wir kümmern uns darüber hinaus um Erweiterungen, wie Schleusen, Desinfektionsanlagen, Spritzschutz und Hygiene-Trennwänden. Dabei ist wichtig auch auf die richtige Einbindung von den Maschinen, Kabeln, Leitungen und Rohren zu achten. 

Natürlich bieten wir Ihnen auch eine Auswahl an Gebrauchtmaschinenan. Melden sie sich einfach bei uns wir geben Ihnen gern weitere Auskünfte zu den genannten Leistungen und Angeboten. 

Cookie Consent mit Real Cookie Banner